Напишите нам
авторизация
Пароль:
Регистрация Забыли пароль?

+7(343) 382-12-54  +7(343)221-00-41

г.Екатеринбург, ул.Машинная, 42а

Площади

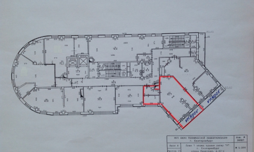
Этаж 7

Свободные для аренды офисы:


Офис №705 ( 63 кв.м.) - 1200 руб/кв.м.

(Коммунальные платежи оплачиваются дополнительно).


Отправить заявку

Оф № 705  -  состоит из небольшой прихожей, отдельного кабинета и общей комнаты. Евроотделка, система кондиционирования.

Есть персональная застекленная лоджия  ( в общий метраж офиса не входит - бонус!)


Данный сайт использует файлы cookie и прочие похожие технологии. В том числе, мы обрабатываем Ваш IP-адрес для определения региона местоположения. Используя данный сайт, вы подтверждаете свое согласие с политикой конфиденциальности сайта.
OK